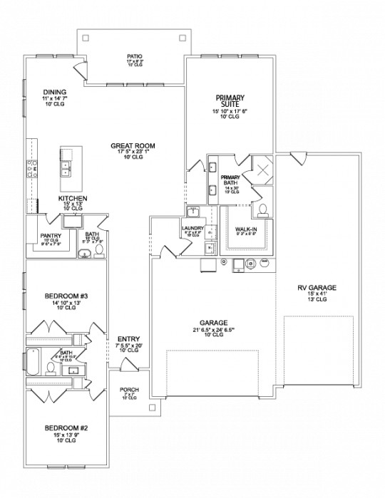
Residence 10
- 3 beds | 2.5 baths
- 2,169 sq. ft.
Starting at $824,900+
- View 3D Virtual Tour
-
View Image Gallery
- Sales Office: 2376 E. Monhegan Dr., Eagle, ID 83616 Get Directions
- (208) 999-0156
- sterlingheights@starwoodrealtyinc.com
This spacious single-story home features 3 bedrooms, 2.5 bathrooms, a 2-car garage plus an RV garage, and a layout designed for modern comfort and convenience.
Off the garage, a dedicated laundry room leads into the heart of the home, where the open-concept great room, dining area, and kitchen come together; complete with a large walk-in pantry and nearby powder room, ideal for entertaining.
At the front of the home, two secondary bedrooms share a full bathroom, offering privacy from the rest of the layout. Tucked away in the rear corner near the great room, the primary suite provides a peaceful retreat with a private bath and a generous walk-in closet.
Blending open living spaces with thoughtful design, this home offers everyday functionality with room to relax, host, and grow.
Floorplan
- Plan #10 - Main Floor - RV Garage