Residence 13
- 3 beds | 2.5 baths
- 2,306 sq. ft.
Starting at $799,900+
- Sales Office: 2391 E. Snocreek Drive, Eagle, ID 83616 Get Directions
- (208) 999-0156
- sterlingheights@starwoodrealtyinc.com
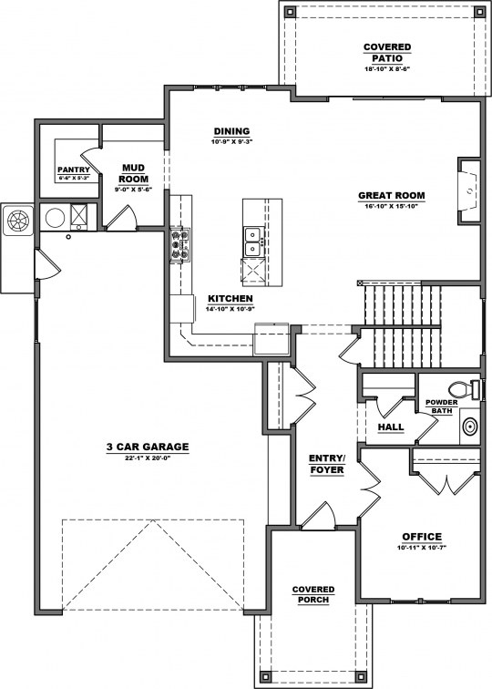
Welcome to this beautifully designed two-story home offering 3 bedrooms, 2.5 bathrooms, and a smart, functional layout built for the way you live today. From the moment you enter, you’re greeted by a private home office and a convenient powder bath, creating the perfect setup for remote work or welcoming guests.
The main floor features a spacious kitchen that opens to a bright great room, offering a seamless space for relaxing and entertaining. Just off the dining area, a walk-in pantry and mud room are thoughtfully placed to help keep things organized and running smoothly.
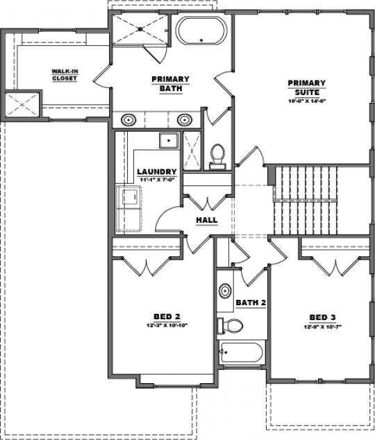
Upstairs, the primary suite provides a peaceful retreat with a private en suite bathroom and a large walk-in closet. Two additional bedrooms share a full bath, and a second-floor laundry room makes everyday tasks more convenient.
Designed with flexibility and function in mind, this new construction home delivers style, comfort, and all the space you need for modern living.
Floorplan
- Sterling Heights- Residence 13 First Level
- Sterling Heights- Residence 13 Second Level
Create Your eBrochure
Use the following controls to configure a brochure for this floorplan. If you cannot use this interactive tool or prefer txt, use the "Read Floorplan Description" button above for a complete textual explanation of the layout and options.